Haus in Salzweg: Viel Platz, Garten und Einliegerwohnung für flexible Nutzung
Eckdaten
- Art Einfamilienhaus
-
Lage
Graberweg 1
94121 Salzweg - Kaufpreis 330.000,00 €
- Wohnfläche ca. 171 m²
- Grundstück ca. 548 m²
- Zimmer 6
- Baujahr 1991
- Heizungsart Zentralheizung
- Einbauküche ja
- Gäste-WC ja
- Stellplatztyp Garage
- Stellplatzanzahl 1
- Garagenanzahl 1
- Vermietet nein
- Bezugstermin sofort
- Fahrzeit Hauptbahnhof 10 min
- Fahrzeit nächste Autobahnauffahrt 20 min
- Bodenbelag Fliesen Laminat
- Ausstattung des Bades Badewanne Dusche Fenster
- Zustand Gepflegt
- Immobilien-ID 6475
- Provision 3,57 % inkl. MwSt.
Immobilie
Zum Verkauf steht ein gepflegtes Einfamilienhaus mit Einliegerwohnung aus dem Jahr 1991, gelegen in einer ruhigen und begehrten Wohnlage von Salzweg bei Passau für 330.000 €. Mit insgesamt ca. 170,5 m² Wohnfläche sowie einem Grundstück von 548 m² bietet die Immobilie vielfältige Nutzungsmöglichkeiten – ideal für Familien, Mehrgenerationenwohnen oder als Kombination aus Wohnen und Vermietung.
Das Haus wurde als Fertighaus in Holzständerbauweise errichtet, der Keller ist massiv gemauert.
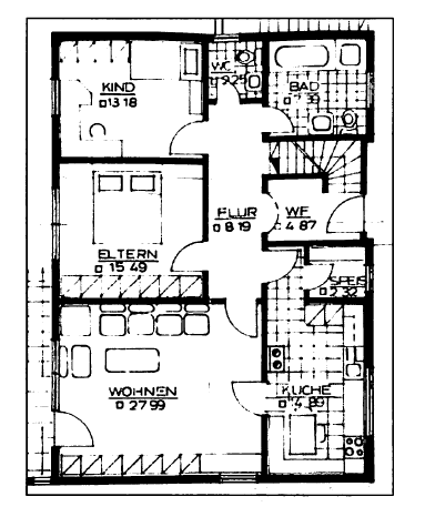
Das Erdgeschoss präsentiert sich hell und freundlich mit einem großzügigen Wohnbereich, zwei Schlafzimmern, Küche, Bad und separatem WC.
Der weitläufige Garten sowie die große Terrasse laden zu entspannten Stunden im Freien ein.
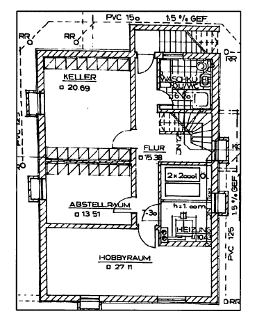
Die Einliegerwohnung im Untergeschoss wurde ausgebaut und verfügt über einen vollwertigen Wohn-/Essbereich mit Küche, ein Schlafzimmer, ein Badezimmer sowie einen zusätzlichen Abstellraum. Ein separater Zugang macht die Wohneinheit flexibel nutzbar.
Ausstattung des Einfamilienhauses mit separater Einliegerwohnung:
– Gesamtwohnfläche: ca. 170,5 m²
— Grundstück: 548 m²
– Baujahr 1991
– Fertighaus in Holzständerbauweise, gemauerter Keller
– Großzügige Terrasse und gepflegter Garten
– Helle Wohnräume mit großen Fensterflächen
– Einliegerwohnung im Untergeschoss mit Wohn-/Essbereich und Küche, Schlafzimmer, Bad und Abstellraum
Erdgeschoss:
– Großzügiges Wohnzimmer mit Zugang zur Terrasse
– Schlafzimmer
– Kinderzimmer
– Küche mit angrenzender Speisekammer
– Badezimmer
– Separates WC
-Flur
Untergeschoss (Einliegerwohnung):
– Wohn-/Essbereich mit integrierter Küche
– Schlafzimmer (ausgebaut)
– Badezimmer
– Abstellraum
– Separater Zugang
Die Immobilie kann kurzfristig übernommen werden.
Besichtigungstermine sind flexibel nach Absprache möglich.
Lage
Das Einfamilienhaus befindet sich in Salzweg in einer ruhigen, gepflegten Wohnsiedlung mit angenehmem Umfeld und hohem Wohnwert. Die Lage überzeugt durch ihre idyllische Ruhe und gleichzeitig durch die unmittelbare Nähe zur Stadt Passau – das Stadtzentrum ist nur etwa 8 km entfernt und in rund 10 Minuten mit dem Auto bequem erreichbar. So genießen Sie die perfekte Kombination aus entspanntem Wohnen im Grünen und der Nähe zur lebendigen Dreiflüssestadt Passau mit ihrem historischen Charme, vielfältigen Einkaufsmöglichkeiten, Restaurants, Schulen und kulturellen Angeboten.
In Salzweg selbst finden Sie alles, was Sie für den Alltag benötigen: Supermärkte, Bäckereien, Apotheken, Kindergärten und Schulen befinden sich in der direkten Umgebung. Die Gemeinde zeichnet sich durch ihre grüne Umgebung, familienfreundliche Infrastruktur und die gute Anbindung an das regionale Verkehrsnetz aus.
Die Region rund um Salzweg steht für eine hohe Lebensqualität – eingebettet zwischen der malerischen Landschaft des Bayerischen Waldes und der Donau, bietet sie zahlreiche Freizeitmöglichkeiten für Naturliebhaber und Aktive. Ob Spaziergänge, Radtouren oder Ausflüge in die Berge: Hier verbinden sich Erholung, Natur und Stadtnähe auf ideale Weise.
Ausstattung
Energieausweisangaben
- Enerigeausweistyp Bedarfsausweis
- Energiekennwert 187 KWh(m²*a)
- Energieeffizienzklasse F
- Energieausweis erstellt am 29.12.2025
- Energieausweis gültig bis 28.12.2035
- Heizungsart Zentralheizung
- Befeuerung / Energieträger Öl
Rechtliches
3,57 % vom notariellen Kaufpreis
Herzlichen Dank für Ihre Anfrage.
Wir werden diese so schnell wie möglich bearbeiten.



